Arhitekturni biro STVAR | Vetrovnik Žirovnica

Arhitekturni biro STVAR | Za švedsko podjetje Inclined Labs smo načrtovali edinstveno stavbo s horizontalnim in pomičnim poševnim vetrovnikom. Patentirano tehnologijo poševnega vetrovnika je investitor razvil v nekdanjem laboratoriju letalske tovarne SAAB v Stockholmu, kjer od leta 2016 obratuje prototip. V Sloveniji je postavljena prva tovrstno načrtovana stavba, kjer opremo in motoriko v poševnem vetrovniku lahko preizkušajo smučarski skakalci in t.i. wingsuit letalci, v horizontalnem vetrovniku pa kolesarji in alpski smučarji. Poleg lokacijskih dejavnikov je bilo poglavitno izhodišče arhitekturne zasnove v pravilni umestitvi celotnega postroja vetrovnika in ustreznem funkcioniranju stavbe v skladu s pričakovanji investitorja. Tehnologija vetrovnika je zasnovana kot zaprta 3D krožna zanka, v kateri so umeščeni pogon (ventilator), vogalni usmerniki zraka z integriranim hlajenjem, v naklonu 14°-34° premična komora poševnega vetrovnika in horizontalni vetrovnik. Ločeno so vključeni tudi prostori za elektro postroj s transformatorsko postajo in hladilni sistem. Potreben volumen tehnologije določa maksimalne zunanje tlorisne in višinske gabarite stavbe. Vetrovniška zanka in pripadajoči postroja predstavlja samostojno klimatsko cono. V središču vetrovniške zanke je umeščen toplotno in zvočno izoliran volumen spremljevalnih prostorov, z etažnostjo P+1+2, pri čemer je del 2. nadstropja zamaknjen v smislu medetaže. Z zasnovo medetaže povežemo 1. in 2. nadstropje v dinamičen, vizualno in svetlobno atraktiven enoten volumen, obenem pa zagotavljamo neposreden prehod na ravno streho ter vhode v poševni vetrovnik na različnih nivojih, v skladu z zahtevami investitorja. Stavba v zunanji podobi kljub asketskemu izboru materialov jasno izpričuje svoj notranji ustroj. Fasada postroja je zasnovana geometrijsko členjenem vidnem betonu s panoramsko zasteklitvijo glavnega vhoda, ki nudi vpogled v tehnološko drobovje in razkriva samo bistvo stavbe, t.j. poševni vetrovnik. Del toplotno izoliranega osrednjega dela stavbe, ki sega iznad oboda vetrovniške zanke, je zasnovan v toplejši, leseni fasadni podobi. Ravne strehe so zasnovane na različnih nivojih skladno s potrebami tehnologije in spremljevalnih prostorov. Del strehe nad poševnim vetrovnikom, oz. glavnim vhodom, pa je zasnovan v naklonu z gornjim zaključkom v tehnološkem stolpu, ki se s konzolnim nadstreškom interpretira kot krilo letalskega repa, kar že na daleč nakazuje vsebino stavbe. Vstop v stavbo vodi skozi spektakularen prostorski volumen pod komoro poševnega vetrovnika, ki obenem služi kot vetrolov pred vstopom v recepcijo ali v predprostor horizontalnega vetrovnika. Preostali del pritličja je namenjen sanitarijam z garderobami za obiskovalce ter komunikacijskemu jedru, ki je umeščeno kot zvočni filter proti strojnici vetrovnika. Osrednji del prostora 1. nadstropja je namenjen t.i. ''wingsuit'' letalni sekciji, kjer se nahaja tudi spodnji vhod poševnega vetrovnika. Preostali del 1. nadstropja služi izključno osebju. V sklopu komunikacijskega jedra proti 2. nadstropju se nahaja medetaža, ki služi kot sprostitveni prostor, oz. t.i. ''lounge'' za obiskovalce. Na severni strani se odpira pogled proti gorski verigi Karavank z izhodom na teraso na ravni strehi, v notranjosti stavbe pa odprt pogled proti poševnemu vetrovniku, navzdol proti 1. nad. in navzgor proti 2. nad.. Iz medetaže se dostopa tudi v prostor kontrole poševnega vetrovnika, ki se nahaja nad popolnoma stekljeno letalno komoro. Osrednji del prostora 2. nadstropja je namenjen t.i. smučarsko-skakalni sekciji, kjer se nahaja zgornji vhod poševnega vetrovnika. Na južni strani se odpira panoramski pogled proti planoti Jelovica, na severni strani pa odprt pogled navzdol proti medetaži. Vzdolž zaledja pritličja so umeščeni ločeni tehnični prostori za urejeno umestitev obsežnega postroja za obratovanje tehnologije in stavbe, z dostopom od zunaj. Vsebina vetrovniške zanke in servisni dostopi do le-te so v celoti zasnovani tako, da je pooblaščenemu osebju možno dostopati v vsak posamičen segmet s terena po obodu stavbe, kjer je v ta namen osnovana tudi ustrezna zunanja ureditev, ki obenem omogoča večnamensko uporabo za treninge na prostem.

Arhitekturni biro STVAR | Vetrovnik Žirovnica

Uporabljamo piškotke.

OK

Vetrovnik Žirovnica

  • Investitor:


    Inclined Labs

  • Kronologija:


    2023: IDZ, DPP
    2024: DGD, gradbeno dovoljenje, PZI
    2025: gradnja
    2026: PID, uporabno dovoljenje

  • Površina:


    Tehnološka cona: 736 m2
    Ogrevana cona: 495 m2
    Odprte površine: 204 m2
    Zunanja ureditev: 2659 m2

  • Izvajalec:


    SEMAGO d.o.o.

  • Nadzor:


    ATELJE PRIZMA d.o.o.

Za švedsko podjetje Inclined Labs smo načrtovali edinstveno stavbo s horizontalnim in pomičnim poševnim vetrovnikom. Patentirano tehnologijo poševnega vetrovnika je investitor razvil v nekdanjem laboratoriju letalske tovarne SAAB v Stockholmu, kjer od leta 2016 obratuje prototip. V Sloveniji je postavljena prva tovrstno načrtovana stavba, kjer opremo in motoriko v poševnem vetrovniku lahko preizkušajo smučarski skakalci in t.i. wingsuit letalci, v horizontalnem vetrovniku pa kolesarji in alpski smučarji.

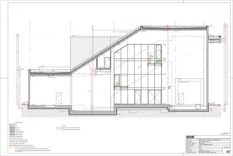
Poleg lokacijskih dejavnikov je bilo poglavitno izhodišče arhitekturne zasnove v pravilni umestitvi celotnega postroja vetrovnika in ustreznem funkcioniranju stavbe v skladu s pričakovanji investitorja. Tehnologija vetrovnika je zasnovana kot zaprta 3D krožna zanka, v kateri so umeščeni pogon (ventilator), vogalni usmerniki zraka z integriranim hlajenjem, v naklonu 14°-34° premična komora poševnega vetrovnika in horizontalni vetrovnik. Ločeno so vključeni tudi prostori za elektro postroj s transformatorsko postajo in hladilni sistem. Potreben volumen tehnologije določa maksimalne zunanje tlorisne in višinske gabarite stavbe. Vetrovniška zanka in pripadajoči postroja predstavlja samostojno klimatsko cono.

V središču vetrovniške zanke je umeščen toplotno in zvočno izoliran volumen spremljevalnih prostorov, z etažnostjo P+1+2, pri čemer je del 2. nadstropja zamaknjen v smislu medetaže. Z zasnovo medetaže povežemo 1. in 2. nadstropje v dinamičen, vizualno in svetlobno atraktiven enoten volumen, obenem pa zagotavljamo neposreden prehod na ravno streho ter vhode v poševni vetrovnik na različnih nivojih, v skladu z zahtevami investitorja.

Stavba v zunanji podobi kljub asketskemu izboru materialov jasno izpričuje svoj notranji ustroj. Fasada postroja je zasnovana geometrijsko členjenem vidnem betonu s panoramsko zasteklitvijo glavnega vhoda, ki nudi vpogled v tehnološko drobovje in razkriva samo bistvo stavbe, t.j. poševni vetrovnik. Del toplotno izoliranega osrednjega dela stavbe, ki sega iznad oboda vetrovniške zanke, je zasnovan v toplejši, leseni fasadni podobi. Ravne strehe so zasnovane na različnih nivojih skladno s potrebami tehnologije in spremljevalnih prostorov. Del strehe nad poševnim vetrovnikom, oz. glavnim vhodom, pa je zasnovan v naklonu z gornjim zaključkom v tehnološkem stolpu, ki se s konzolnim nadstreškom interpretira kot krilo letalskega repa, kar že na daleč nakazuje vsebino stavbe.

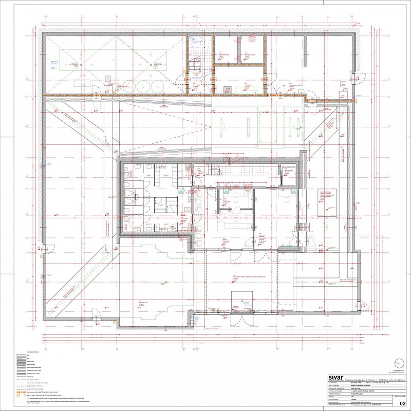
Vstop v stavbo vodi skozi spektakularen prostorski volumen pod komoro poševnega vetrovnika, ki obenem služi kot vetrolov pred vstopom v recepcijo ali v predprostor horizontalnega vetrovnika. Preostali del pritličja je namenjen sanitarijam z garderobami za obiskovalce ter komunikacijskemu jedru, ki je umeščeno kot zvočni filter proti strojnici vetrovnika.

Osrednji del prostora 1. nadstropja je namenjen t.i. ''wingsuit'' letalni sekciji, kjer se nahaja tudi spodnji vhod poševnega vetrovnika. Preostali del 1. nadstropja služi izključno osebju.

V sklopu komunikacijskega jedra proti 2. nadstropju se nahaja medetaža, ki služi kot sprostitveni prostor, oz. t.i. ''lounge'' za obiskovalce. Na severni strani se odpira pogled proti gorski verigi Karavank z izhodom na teraso na ravni strehi, v notranjosti stavbe pa odprt pogled proti poševnemu vetrovniku, navzdol proti 1. nad. in navzgor proti 2. nad.. Iz medetaže se dostopa tudi v prostor kontrole poševnega vetrovnika, ki se nahaja nad popolnoma stekljeno letalno komoro.

Osrednji del prostora 2. nadstropja je namenjen t.i. smučarsko-skakalni sekciji, kjer se nahaja zgornji vhod poševnega vetrovnika. Na južni strani se odpira panoramski pogled proti planoti Jelovica, na severni strani pa odprt pogled navzdol proti medetaži.

Vzdolž zaledja pritličja so umeščeni ločeni tehnični prostori za urejeno umestitev obsežnega postroja za obratovanje tehnologije in stavbe, z dostopom od zunaj. Vsebina vetrovniške zanke in servisni dostopi do le-te so v celoti zasnovani tako, da je pooblaščenemu osebju možno dostopati v vsak posamičen segmet s terena po obodu stavbe, kjer je v ta namen osnovana tudi ustrezna zunanja ureditev, ki obenem omogoča večnamensko uporabo za treninge na prostem.

Fasada
Fasada
Rez
Rez
Detajl
Detajl
Tloris
Tloris
Situacija
Situacija